Rectory Lane, Weeting, Brandon

Sold STC
£290,000
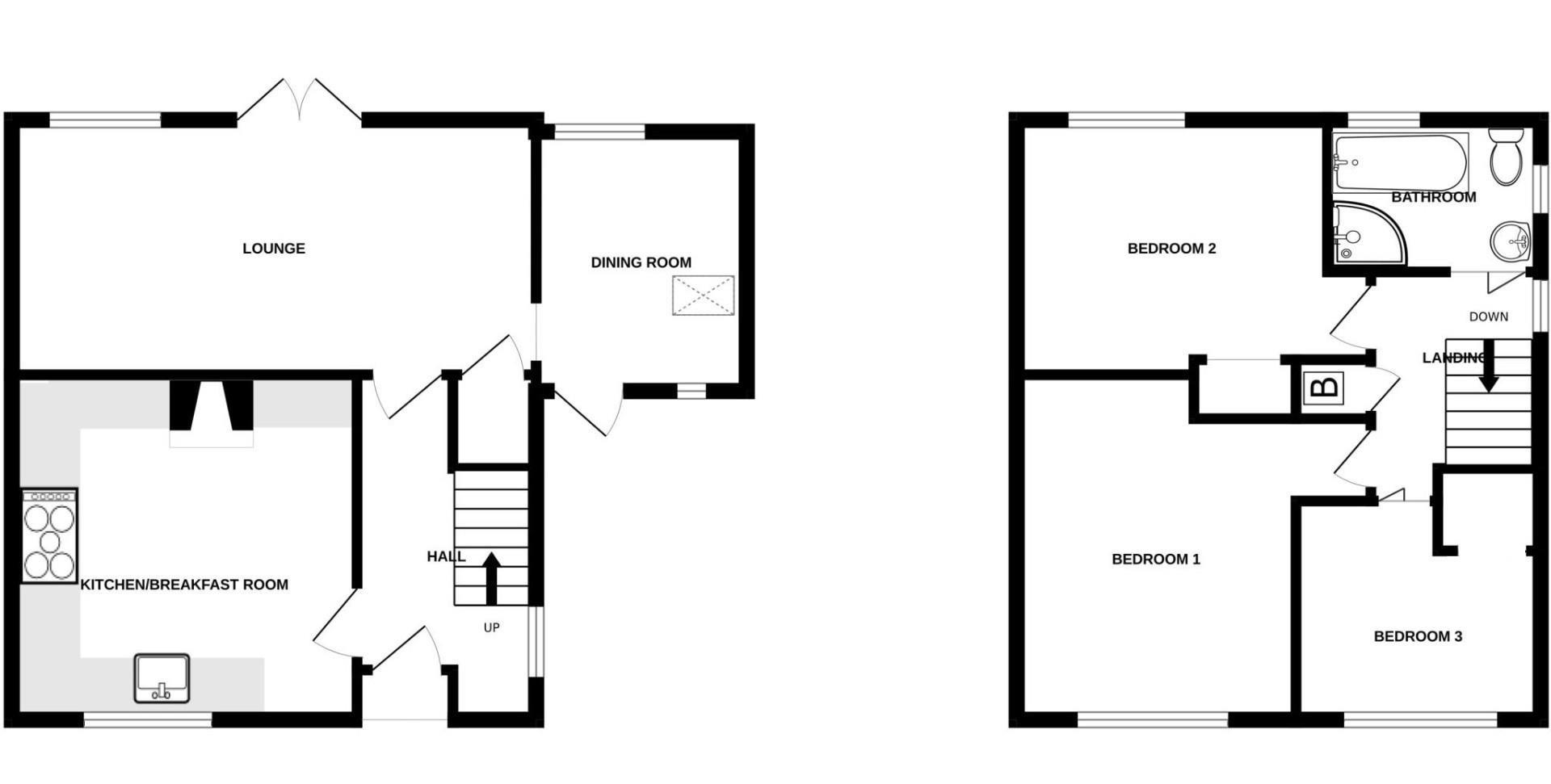
3 Bedrooms
1 Bathrooms
2 Receptions

Property Summary

Attractive semi detached home boasting a GENEROUS GARDEN with circular patio feature and pergola. The ground floor accommodation comprises the kitchen, lounge and diner, whilst upstairs there are THREE BEDROOMS and family bathroom with BOTH bath and shower!

Features

Property Features

  • Established, Semi Detached Home
  • Generous Garden to Rear & Side
  • Driveway Providing Ample Off Street Parking
  • Kitchen, Lounge & Diner
  • Three Bedrooms
  • Attractive Bathroom with Bath & Shower
  • LPG Heating
  • Sealed Unit UPVC Windows
  • Sought After Village Location
  • Close Proximity to Nearby Market Town

Location

Arrange a viewing
Please feel free to contact us to arrange a viewing or if you have any questions about this property.
Scroll to Top